PontiacV8.com

Pontiac's Manufacturing and employment Office Building...

PontiacRocky Rotella12 Comments

(Update November 17, 2018: Shortly after this blog post went live Dimitrie Toth clarified that the building was technically named Pontiac’s “Manufacturing and Employment Office” for the Home Plant. I was also contacted by Michelle Peters, who worked at the facility during the ‘60s and ‘70s. She and Dimitrie Toth further helped me identify exactly where the Manufacturing and Employment Office was actually located. The entire area has changed so nothing looks as it did then, but we have a much better understanding today because of their assistance. I have updated the maps and google street views images below to better reflect that.)

If you’ve been following my blog posts for any length of time, you’ve likely recognized my fascination with vintage Pontiac photos. So many of the images in my collection depict Pontiacs performing the exact function that divisional designers and engineers intended—living life as a daily driver. Not only do they provide us with a chance to see classic Pontiacs in new or near-new states, they give us a snapshot of a bygone era when our beloved marque was the car to own.

I’ve had this photo (and another like it) in my collection for quite some time. It wasn’t until recently, and with the help of General Motors’ Heritage Center that I learned it was of Pontiac’s Manufacturing and Employment Office building. The prese…

I’ve had this photo (and another like it) in my collection for quite some time. It wasn’t until recently, and with the help of General Motors’ Heritage Center that I learned it was of Pontiac’s Manufacturing and Employment Office building. The presence of 1960 Pontiacs lends insight to its vintage.

As I was combing through 35 mm slides, I happen across a pair that was unlike the others. Yes, the images had Pontiacs in them, but the ‘60 models weren’t the main focal point. Instead, in the background was an attractive brick building with the words “Pontiac Motor Division” and “General Motors Corporation” on it. Having never explored Pontiac, Michigan at a time when Pontiac Motor Division occupied many of its original buildings, I really had no idea where these photos were taken nor the building’s purpose. I knew there had to be some significance and I was determined to find out!

The 1960 Pontiacs within the images suggest a reasonable time frame. Vintage documents I have in my literature collection from that era list the street address of Pontiac’s original Administration Building (or headquarters) at 196 Oakland Avenue. A quick review of Google Maps revealed that the building remains standing, albeit occupied by a completely different organization. I ruled it out as the building in my slides with a simple street level view.

Pontiac’s original Administration Building was located at 196 Oakland Ave in Pontiac, Michigan. Using Google Maps I was able to determine that the build still stands, but it wasn’t that in my images.

Pontiac’s original Administration Building was located at 196 Oakland Ave in Pontiac, Michigan. Using Google Maps I was able to determine that the build still stands, but it wasn’t that in my images.

I then traveled just north on the map to the area that once contained Pontiac’s original assembly plant and production facility. According to the satellite view, very little remains of the original complex. And among the buildings still in use was one on Joslyn Ave that once housed Pontiac’s Product Engineering and is now home to GM Powertrain. That building didn’t resemble what was in my images either.

After receiving Christo Datini’s email that explained the location and further assistance from Dimitrie Toth and Michelle Peters, I was able to determine where it once stood it using Google Maps.

After receiving Christo Datini’s email that explained the location and further assistance from Dimitrie Toth and Michelle Peters, I was able to determine where it once stood it using Google Maps.

With little else to go on, I deiced to contact Christo Datini, the Lead Archivist at General Motors’ Heritage Center in Warren, Michigan. I was confident that if anyone were able to help me accurately identify this building, it would be Christo and his team of researchers and network of retired GM employees. I’m excited to report that he didn’t disappoint!

Taken while 1960 Pontiacs were still new, this brick building in this photograph represents the best era of production and assembly in the Division’s history.

Taken while 1960 Pontiacs were still new, this brick building in this photograph represents the best era of production and assembly in the Division’s history.

Upon receiving my original email containing the images, Christo replied, “Would you mind if I shared with a retiree colleague to get his opinion? I’d rather not speculate.” I gladly agreed and within a very short time another reply from Christo arrived that contained the following.

“Comments from Dimitrie Toth via Terry Connolly about the pictures you sent:

The first set of pictures you passed along were taken looking west from East Kennett Rd in Pontiac. This was a manufacturing administration and employment building at N Glenwood and Kennett – effectively at the “front” of the foundry and engine plant area. And it covered administrative functions for all of the operations on the site (so vehicle assembly as well). The building actually remained up until sometime in the early 90s.”

A Google Maps street view of the looking west on North Glenwood gives us an idea of where Pontiac’s Manufacturing and Employment Office building, as well as the Plant 6 once stood.

A Google Maps street view of the looking west on North Glenwood gives us an idea of where Pontiac’s Manufacturing and Employment Office building, as well as the Plant 6 once stood.

Although I was dismayed to learn that the structure in my images was razed, I was elated to know its exact origin. Another Google Maps search ensued to find the area where it once stood, and as expected it’s now a parking lot. I immediately began an online search for other vintage images of Pontiac’s Manufacturing and Employment Office building. Nothing concrete panned out, but I was able to locate a line map of the original assembly complex created by fellow Pontiac enthusiast and historian, the late Eric White. Identified on it was that very administration building.

As I stared at the newly-identified images, I began thinking about how bustling a facility it must’ve been in 1960. We know that Pontiac offered plant tours and there had to have been thousands upon thousands of visitors that it welcomed over the decades. I then realized that the images before my eyes were taken nearly 60 years ago by visitor who will forever be a stranger to me. He or she was so inspired by the experience of an otherwise ordinary day for the facility that they felt the need to visually record it for posterity. Little did they realize that image they cemented on that day during the 1960 model year was of the Pontiac plant in the infancy of its greatness. As the ‘60s rolled on, that brick façade would go on to represent the Super Duty Catalinas, the Grand Prixs, the GTOs, the 2+2s and so many more of the vehicles and/or components that produced that continue fuel our passion today.

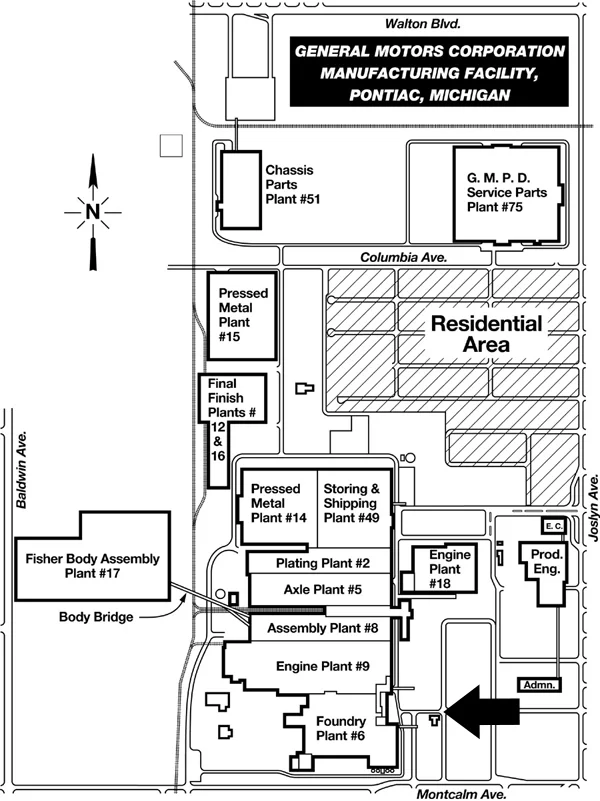
This map of Pontiac’s Manufacturing Facility was created by Eric White for his series of articles on the complex that appeared in POCI’s Smoke Signals publication. The large black arrow points to the Manufacturing Administration building depicted in…

This map of Pontiac’s Manufacturing Facility was created by Eric White for his series of articles on the complex that appeared in POCI’s Smoke Signals publication. The large black arrow points to the Manufacturing Administration building depicted in the photos.

In researching these images for this very blog post, they have been awarded an intrinsic value that doesn’t necessarily equate to any monetary amount. Instead they give us an invaluable look at the face of the facility that actually created the mechanical greatness that has become the Pontiac hobby that you and I enjoy so profoundly.

Do you have any recollections of Pontiac’s Manufacturing and Employment Office building?   

Former Pontiac employee, Michelle Peters so kindly sent this vintage photo of Pontiac’s Manufacturing and Employment Office building. She adds, “People also hired in there. Also in that building was medical. The whole area is now gone.”

Former Pontiac employee, Michelle Peters so kindly sent this vintage photo of Pontiac’s Manufacturing and Employment Office building. She adds, “People also hired in there. Also in that building was medical. The whole area is now gone.”